|
|
|
|
|
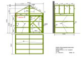
Bild
01
- Aufriß
|
|
|
|
Bild
02
- Details
|
|
|
|
Bild
03
- Stückliste
|
|
|
|
Bild 04
- Einkaufdhilfe
|
|
|
|
| Bild 05
- Sockel |
|
|
Kostenüberschlag; ( ¤ )
Preise vom 22.08.2008
|
Latten
(2,4 x 4,8 x 300)
29 x 1,20 ¤
|
34,80
|
Gitterfolie
(200 breit, 3,06/m³)
13 * 2 * 3,06 ¤
|
79,56
|
Rasenkantensteine
(5 x 15 x 100)
7 x 2,15 ¤
|
15,05
|
Kantholz
(Pfosten)
7 x 7 x 300
4 x 5,96 ¤
|
23,84
|
Eisenteile
Schrauben,
1 Riegel,
2 Scharniere
|
30,00
|
Summe
|
183,25
|
|

|
Bild 06
- Regenwassersammelstelle
|
|
|
|
|
Vorbemerkung:
Früher in der DDR, da war ein Gewächshaus aufgrund der Versorgungslage
schon einmal etwas ganz erstrebenswertes. Aber Gewächshäuser, die gab
es halt auch nicht so reichlich und relativ teuer waren die auch. Ich
habe damals mit Bohnenstangen und Folie experimentiert und gewaltige
Gurkenerträge eingefahren.
Heute ist das natürlich ganz anders. Heutzutage gibt es Gewächshäuser
wie Sand am Meer. In jeder Größe, in allen möglichen Ausführungen.
Tausende Gewächshaushersteller und -händler warten nur darauf ein
Gewächshaus aufbauen zu dürfen. Nur das Geld, das ist halt heutzutage
eh so'n bissel knapp, manchmal.
Über die Vorteile eines Gewächshauses brauche ich hier nicht weiter zu
referieren. Man weiß, was man ißt, man konnte sein Gemüse
aufwachsen sehen.
|
Standort:
Der ist zwar von der Ausrichtung her eigentlich auf dem ersten Blick
nicht ideal für ein Gewächshaus
aber ich habe eine "tote Ecke" in meinem Garten, da steht auch noch,
genau
auf der Grenze (Altlast) ein schmuckloser Schuppen vom Nachbarn, ohne
Fenster und Tür zu meiner Seite. Es bietet sich geradezu an, da ein
kleines Gewächshaus dagegen zu stellen und den Platz damit endlich
sinnvoll zu nutzen.
Auf dem zweiten Blick bietet die Existenz des Schuppens sogar vier
gewaltige Vorteile.
|
|

|
|
> Er
ist nicht hoch, die Sonne kann permanent über das Dach einstrahlen.
> Während der Mittagszeit schirmt der Schuppen das Gewächshaus gegen
volle Sonnenbestrahlung ab.
>
Während dieser Zeit speichert er die Wärme und wirkt dann in der Nacht
als Speicherheizung.
> Die Dachfläche sammelt Regenwasser für die Bewässerung des
Gewächshauses.
|
Gestell:
Man könnte ... Ja es gibt die große Auswahl. Ich habe mich
bezüglich
des Gestells für imprägnierte
Dachlatten 24 x 48 mm entschieden. Es
ist nicht das dauerhafteste Material, dafür aber relativ preiswert
erhältlich. Kalkulierte Kosten, etwa 50,- ¤. Plus Schrauben, Riegel,
Folie und Sockel müßte alles zusammen für etwa 200,- ¤ machbar sein.
Da das Gewächshaus im Windschatten des Schuppens steht und damit nicht
der vollen Windlast ausgesetzt ist, müßte die Abmessung der Latten mit
24 x 48
mm völlig ausreichend sein. Das Maßverhältnis 1:2 ist auch
sehr interessant., es lassen
|
|

|
|
sich
stabile Eckpackete aufbauen. Bei Verwendung von 5er Schrauben,
verbleibt eine theoretische Materialstärke von 0,95 cm.
Auf exakte
Maßbilder wird in anbetracht der 63 Gestellbauteile verzichtet. 5
cm von der Kante und dann im
Abstand von 30 bis 40 cm sollte geschraubt werden, bei kreuzenden
Schraubverbindungen sollten etwa 2 cm Material dazwischen sein.
|
Folie:
Gitterfolie, Gewächshausfolie 200 µm oder Noppenfolie 150 µm oder die
Kombination daraus, es ist noch nocht klar und schlußendlich auch eine
Frage des Preises. Mal sehen, was sich auftreiben läßt.
|
Sockel:
Ein Sockel muß nicht unbedingt sein, macht sich aber irgendwie besser.
Er gewährleistet die gleichmäßig ebene Fläche, wenn er ordentlich
ausgerichtet ist und er hält das Gewächshaus als konstruktiver
Holzschutz vom direkten Kontakt mit
der Bodenfeuchte auf Distanz.
Die Rasenkanten-Betonsteine (5 x 15 x 100) kommen etwa 9 cm in den
Boden und stehen dann etwa 4 cm heraus. Penibel wagerecht ausgerichtet,
werden darauf die 70er imprägnierten Kanthölzer aufgelegt, die dann
beidseitig 1 cm überstehen. Damit kann das Wasser auch abtropfen und
staut sich nicht unter dem Holz. Fixierung mittels einiger
Schrauben.
|
|

|
|
|
|
Skizzen
& Listen:
(Die
Links führen zu pdf-Dateien,
die alle jeweils in einem neuen
Fenster öffnen.)
|
|
Montage:
Wird
nach Realisierung eingestellt.
|
|
|
|
|